Sigfrids väg 29 Knislinge

Friliggande villa - Knislinge

Sigfrids väg 29

Gediget och inbjudande villaboende centralt i Knislinge

Boarea 96 m²
Rum 5 rum
Tomtarea 776 m²
Byggår 1965
Pris 1 495 000 kr/bud
Visning Lördag 28 mars kl 13:00-13:40 Boka tid via hemsida eller mäklare på 0709-126120

Välkomna till detta vackra och välskötta villaboende, beläget på ett mycket centralt och eftertraktat läge i Knislinge. Här träder vi in i en inbjudande och ljus miljö, där fräscha ytskikt och en stilren interiör möter oss. Direkt till vänster finner vi ett välplanerat kök med klassisk inredning i ek, där det finns goda möjligheter för att duka upp till större middagar vid ett rymligt matbord.

Från hallen leder vi oss vidare in i det stora och ljusa vardagsrummet, där en vacker täljstenskamin är centralt placerad och sprider en härlig värme och atmosfär. Från vardagsrummet nås det trivsamma uterummet, en perfekt plats för avkoppling och sociala stunder.

I bostaden finns tre fint inredda sovrum som erbjuder rofyllda och privata ytor för hela familjen. Det välutrustade och helkaklade badrummet har dusch och är utfört av fackman med full våtrumsgaranti, vilket garanterar både funktion och trygghet.

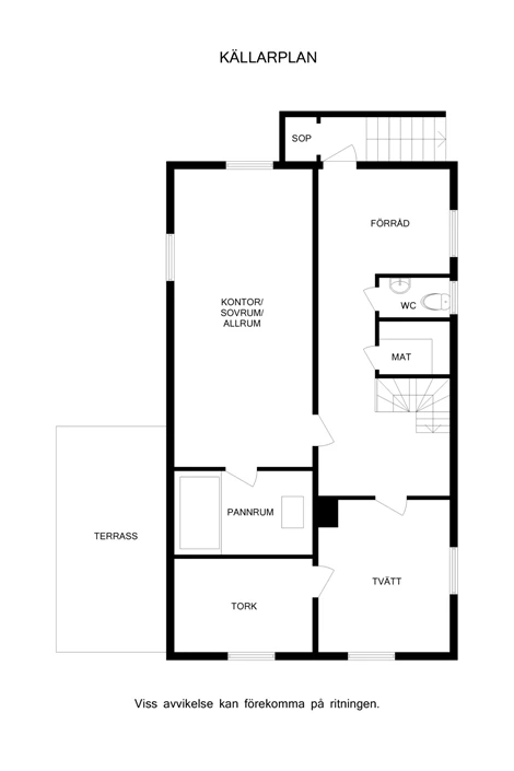
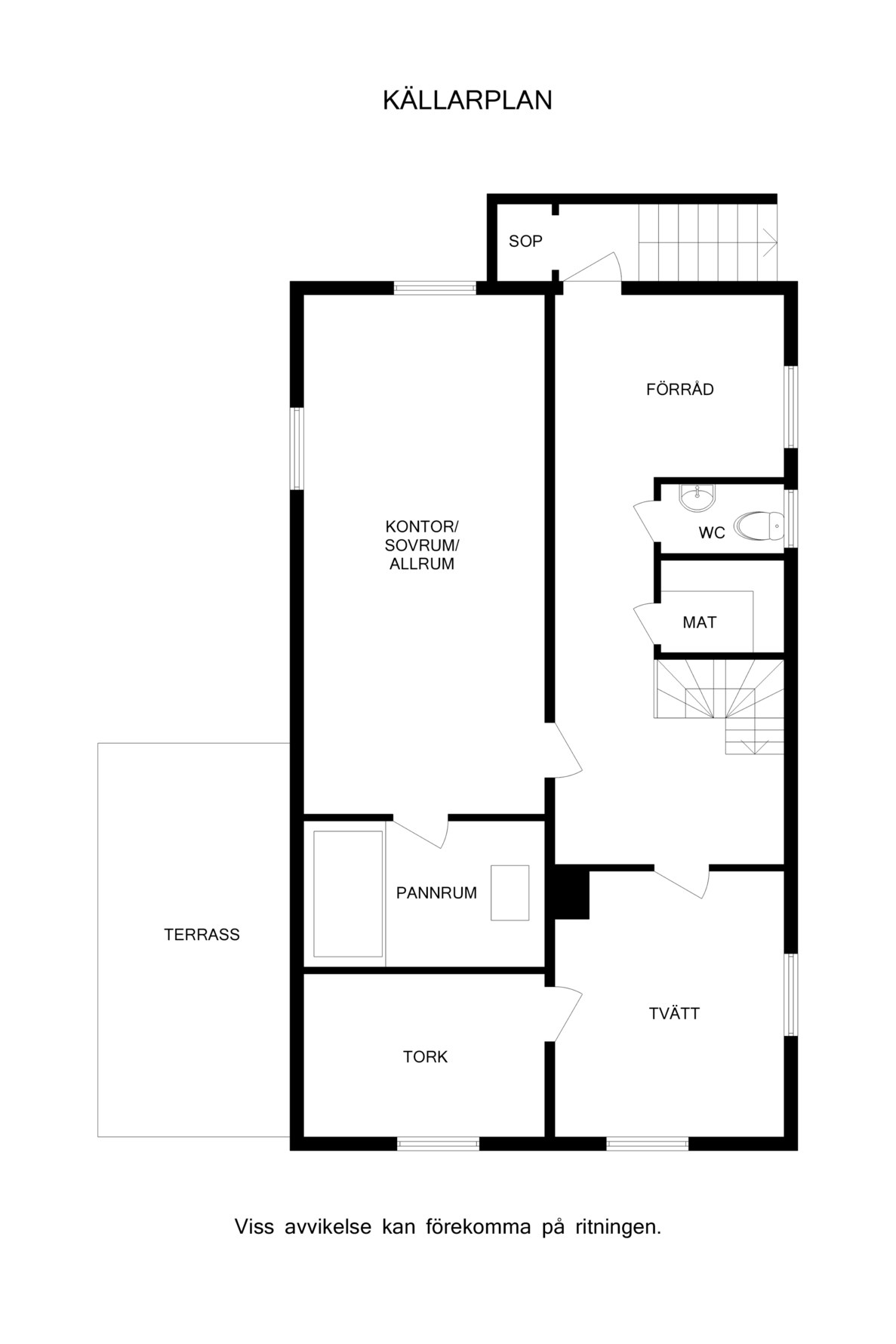
Källarplanet erbjuder ett antal praktiska och fräscha förvaringsutrymmen, tvättstuga samt en extra toalett, vilket ger goda möjligheter för både förvaring och praktisk vardagslogistik.

En tillbyggnad rymmer ett stort och välbyggt garage av mycket hög kvalitet, där det även finns ett förrådsutrymme för extra förvaring. Den lättskötta trädgårdstomten, med perfekt söderläge, erbjuder en rofylld oas och en fin plats för både trädgårdsarbete och utomhusaktiviteter. Fint stensatta uteplatser i olika lägen för att kunna njuta solens strålar hela dagen.

Detta är ett boende för dig som söker både kvalitet, komfort och ett centralt läge i Knislinge. Välkomna att uppleva denna fantastiska bostad!

Sigfrids väg 29
Sigfrids väg 29
Sigfrids väg 29
Sigfrids väg 29
Sigfrids väg 29
Sigfrids väg 29
Se alla bilder Intresseanmälan
Byggnadstyp 1-plansvilla med källare
Byggnadsår 1965
Fasad Tegel/trä
Stomme Trä
Fönster 3-glas
Tak Betongpannor
Bjälklag Betong
Grundläggning Källare
Uppvärmning Pellets / täljstenskamin
Övriga byggnader Stort tillbyggt garage med automatport.
Boarea 96 m² (taxeringsinformation)
Biarea 122 m² (taxeringsinformation)
Pris 1 495 000 kr/bud
Upplåtelseform Friköpt
Energideklaration 114 kWh/kvm/år. Energiklass D
V/A Kommunalt vatten året om. Kommunalt avlopp
Ventilation Självdrag
Servitut etc Servitut, GA, Samfälligheter etc: Avtalsservitut Vattenkraft
Last: Avtalsservitut Vattenkraft, 11-IM1-44/398.1

Planbestämmelser: Tomtindelning (1962-10-04) Stadsplan (1957-02-01) Stadsplan (1939-08-18)
Tomttyp Trädgårdstomt
Övrigt om tomten Lättskött tomt i sydväst.
Taxeringskod 220, Småhusenhet, bebyggd
Taxeringsvärde Taxeringsvärdet är 963 000 kr varav byggnadsvärde 752 000 kr, mark 211 000 kr. Värdeår: 1965.
Pantbrev 4 st om totalt 625 000 kr.

Knislinge är den största tätorten i Östra Göinge kommun, belägen ca 20 kilometer norr om Kristianstad. Här bor du med skog och sjöar i närområdet.
Helgevallen är byns fotbollsanläggning.

Mycket goda kommunikationer med buss som tar dig mot Kristianstad och Broby. med bil ca 25 minuter till centrala Kristianstad.

I centrala Knislinge finns Mickelstorg kring vilket vi finner både livsmedelsbutik, vårdcentral, apotek och tandläkare.

Skolorna i Knislinge är Västerskolan med årskurs F-3 och Snapphaneskolan för årskurs 4-9.

Här bor du i en trygg miljö med goda pendlingsmöjligheter med närhet till skog och sjöar.

Här bor du i en trygg miljö med goda pendlingsmöjligheter med närhet till skog och sjöar.

Intresseanmälan

Intresseanmälan